3B Architekten

>

Bahnhofplatz

Zofingen

Neubau Zugang und
Velostation, Neugestaltung Bahnhofplatz

 

Stadt Zofingen

2012 – 2024

 

Der kompakten Stadtkörper bildet die Identität Zofingens. Darum herum führt die Grabenstrasse. Mitte des 19. Jahrhunderts kam die Bahn. Als Zugang zum Bahnhof wurde eine Lücke in die Stadtkulisse geschlagen. Das Verkehrsaufkommen stieg iund der Freiraum zwischen den Privatgärten und dem Bahnhof wird immer knapper. Nun platzt die Anlage aus allen Nähten. 

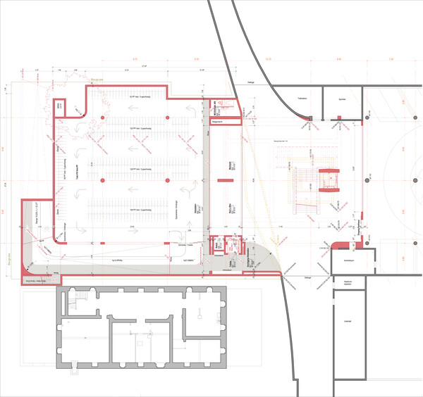
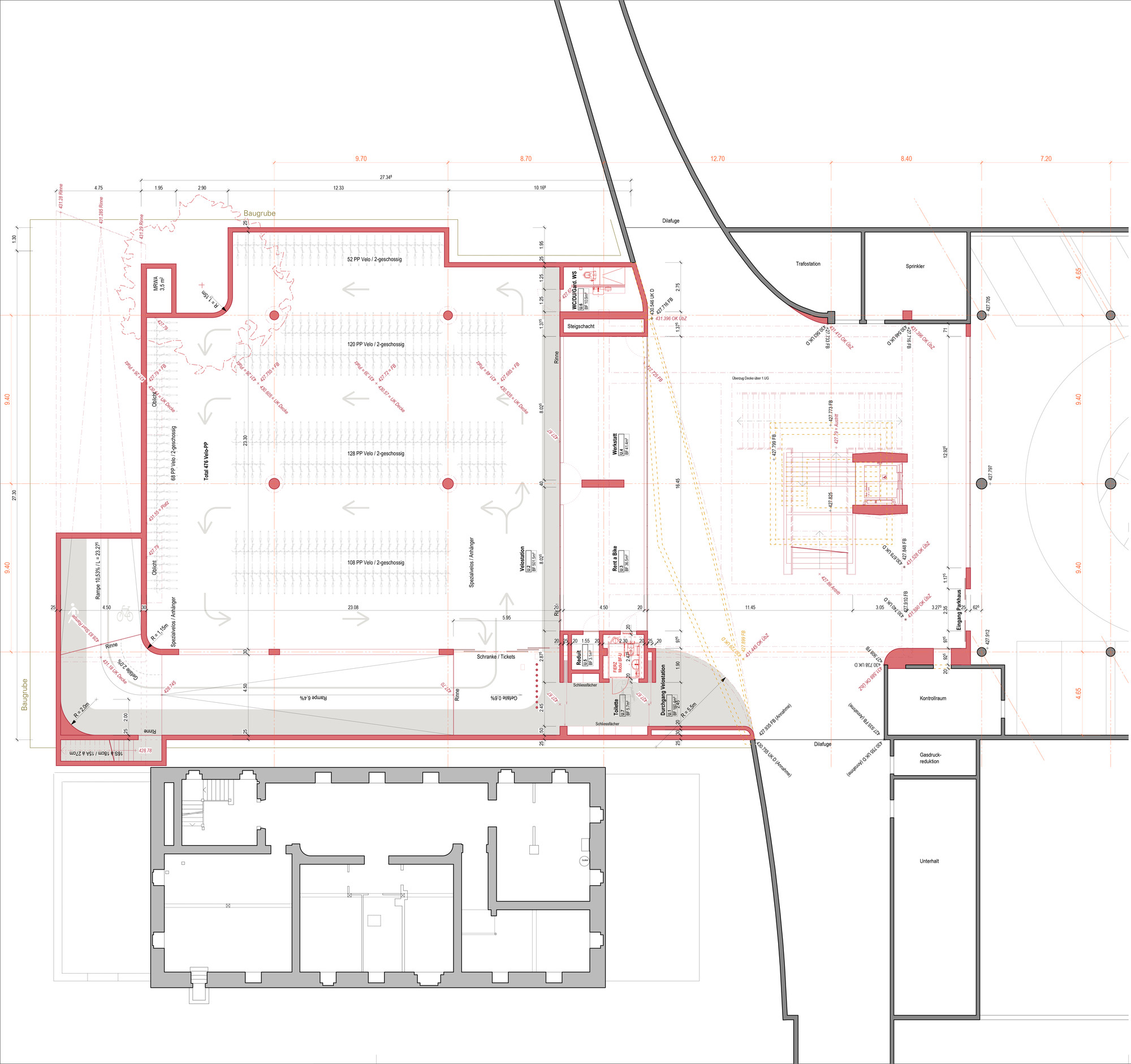
Die Grunddisposition der Bahnhofsanlage ist sehr gut. Die öffentlichen Verkehrsträger sind aufeinander abgestimmt. Die Geleise sind mit drei Unterführungen erschlossen. Das Angebot an Abstellplätzen ist gross und auch die Veloparkplätze sind optimal an jedem Eingang angeordnet. Unser Konzept baut auf dem Bestand auf. Der Bahnhofplatz wird so befreit, dass die Erkennbarkeit der Fussgängerführung für die Bahnkunden wieder ersichtlich ist. Die Fusswege werden den neuen Bedürfnissen angepasst und verbreitert. Die Veloparkierung wird unter dem Bahnhofplatz angeordnet und direkt an die Unterführung angeschlossen und der zentrale Aufgang mit Lift und Treppe vergrössert und geöffnet. Ein einladendes Dach zeigt den Passanten den Eingang zur Hauptunterführung. Vor dem ehemaligen Bahnhofgebäude entsteht dadurch wieder ein richtiger Platz. Er dient als Treffpunkt, Aufenthalts- und Orientierungsort.

 

Wettbewerb 2012

1. Rang

 

Planungsteam mit:

. Weber + Brönnimann AG

. KFB Pfister AG